Piilopalkkikengät
Piilokenkiä käytetään piiloon jäävissä palkki-puuliitoksissa tai palkki-pilariliitoksissa (BTN tai BTALU). Liitoksen kaltevuuskulma voi olla jopa 45°. Kiinnikkeen korkeuden tulee olla noin 40 mm puutavaraa matalampi. Piilokenkiä BTN90 ja BT4-90 voidaan kuitenkin käyttää, kun puutavaran korkeus on 100 mm.
Tuotteen yksityiskohdat
Ominaisuudet
Materiaali
- Alumiini EN AW-6082 T6, EN 755 mukaan
- Paksuus 6 mm
Hyödyt
- Helppo asentaa
- Suuri kestävyys
- Palonkesto jopa 30 minuuttia. Tarvittaessa lisätietoja ota yhteyttä tekniseen tukeen
Sovellus
Liitos
- Primääripalkki: massiivipuu, liimapuu
- Sekundääripalkki: massiivipuu, liimapuu
Käyttötarkoitus
- Kantava palkki
Tekniset tiedot
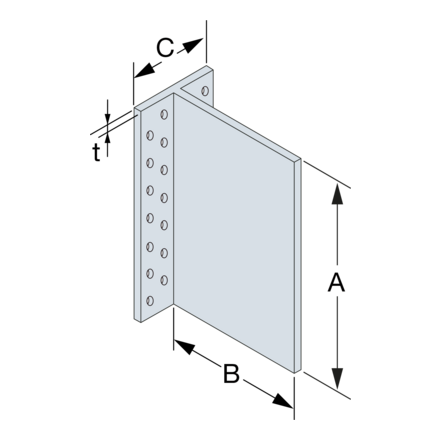
Mitat ja ominaisarvot
| Tuotenro | DB nr. | Mitat ja ominaisarvot [mm] | Reiät HB | Box Quantity | Paino [kg] | |||
|---|---|---|---|---|---|---|---|---|
| A | B | C | t | Ø5 | ||||
| BTALU90 | 1862485 | 86 | 109 | 62 | 6 | 16 | 25 | 0.23 |
| BTALU120 | 1821910 | 116 | 109 | 62 | 6 | 20 | 25 | 0.3 |
| BTALU160 | 1821917 | 156 | 109 | 62 | 6 | 28 | 25 | 0.41 |
| BTALU200 | 1862489 | 196 | 109 | 62 | 6 | 38 | 15 | 0.51 |
| BTALU240 | 1821920 | 236 | 109 | 62 | 6 | 44 | 15 | 0.61 |
| BTALU3000 | 5104612 | 3000 | 109 | 62 | 6 | - | 1 | 8 |
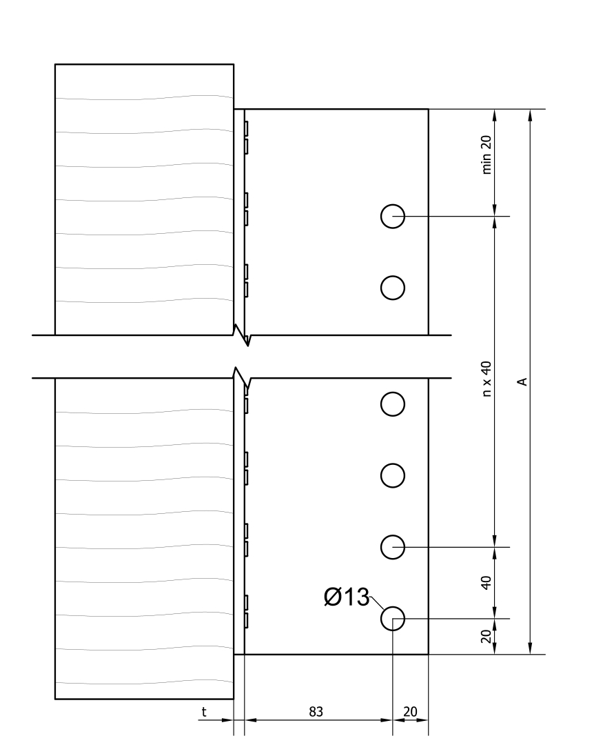
Reiät on porattava reiän kuvion mukaisesti sisään ETA.
Kestävyyden ominaisarvot - Palkki-palkkiliitos
| Tuotenro | Kestävyyden ominaisarvot - Palkki-palkkiliitos - Täysi kiinnitys [kN] | |||||||||
|---|---|---|---|---|---|---|---|---|---|---|
| Liitoskiinnikkeet | R1,k = R2.k | |||||||||
| Primääripalkki | SB | Puutavaran leveys = teräsvaarnan pituus [mm] | ||||||||
| Määrä | Tyyppi | Määrä | Tyyppi | 60 | 80 | 100 | 120 | 140 | 160 | |
| BTALU90 | 16 | CNA4.0x50 | 4 | STD8 | 10.8 | 11.8 | 12.9 | 13.7 | 13.7 | 13.7 |
| BTALU120 | 20 | CNA4.0x50 | 3 | STD12 | 17.3 | 18.2 | 19.4 | 20.7 | 22.3 | 23.9 |
| BTALU160 | 28 | CNA4.0x50 | 4 | STD12 | 28 | 29.5 | 31.2 | 33.3 | 35.7 | 38.2 |
| BTALU200 | 38 | CNA4.0x50 | 5 | STD12 | 39.8 | 41.9 | 44.3 | 47.2 | 50.4 | 53.9 |
| BTALU240 | 44 | CNA4.0x50 | 6 | STD12 | 52.2 | 54.9 | 57.9 | 61.7 | 65.9 | 70.3 |
Palkin leveyden täytyy olla vähintään sama kuin teräsvaarnan pituuden.
Palkeissa, joiden kulma on β, kantokyvyt on kerrottava kertoimella.
| β | 0° | 15° | 30° | 45° |
| kerroin | 1.0 | 0.95 | 0.9 | 0.85 |
Tarvitaan vain liitoksissa, joissa palkissa on alle 7 teräsvaarnaa.
Kestävyyden ominaisarvot - Palkki-palkkiliitos - R3.k ja R4.k
| Tuotenro | Kestävyyden ominaisarvot - Palkki-palkkiliitos - Täysi kiinnitys [kN] | ||||||||||
|---|---|---|---|---|---|---|---|---|---|---|---|
| Liitoskiinnikkeet | Kestävyyden ominaisarvot [kN] | ||||||||||
| Primääripalkki | SB | R3,k | R4,k | ||||||||
| Määrä | Tyyppi | Määrä | Tyyppi | Puutavaran leveys = teräsvaarnan pituus [mm] | |||||||
| 60 | 80 | 100 | 120 | 140 | 160 | ||||||
| BTALU90 | 16 | CNA4.0x50 | 4 | STD8 | 1.5 | 1.9 | 2.3 | 2.7 | 3.1 | 3.6 | 7.8 |
| BTALU120 | 20 | CNA4.0x50 | 3 | STD12 | 2.2 | 2.9 | 3.5 | 4.2 | 4.8 | 5.6 | 9.8 |
| BTALU160 | 28 | CNA4.0x50 | 4 | STD12 | 2.9 | 3.6 | 4.4 | 5.3 | 6.2 | 7 | 13.7 |
| BTALU200 | 38 | CNA4.0x50 | 5 | STD12 | 3.5 | 4.4 | 5.4 | 6.4 | 7.4 | 8.4 | 17.6 |
| BTALU240 | 44 | CNA4.0x50 | 6 | STD12 | 4.2 | 5.3 | 6.4 | 7.4 | 8.6 | 9.8 | 21.6 |
Palkin leveyden täytyy olla vähintään sama kuin teräsvaarnan pituuden.
R4,k kantokyvyt koskevat kaiken pituisia teräsvaarnoja.
Kestävyyden ominaisarvot - Palkki-pilariin
| Tuotenro | Kestävyyden ominaisarvot - Palkki-pilariin - Osittainen kiinnitys | ||||||||||
|---|---|---|---|---|---|---|---|---|---|---|---|
| Liitoskiinnikkeet | Pilariin leveys | Kestävyyden ominaisarvot [kN] | |||||||||
| Primääripalkki | SB | Minimi | R1,k = R2.k | ||||||||
| Määrä | Tyyppi | Määrä | Tyyppi | Puutavaran leveys = teräsvaarnan pituus [mm] | |||||||
| 60 | 80 | 100 | 120 | 140 | 160 | ||||||
| BTALU90 | 8 | CNA4.0x50 | 4 | STD8 | 96 | 9 | 9.9 | 10.9 | 11.6 | 11.6 | 11.6 |
| BTALU120 | 12 | CNA4.0x50 | 3 | STD12 | 96 | 14.7 | 15.5 | 16.6 | 17.9 | 19.4 | 20.7 |
| BTALU160 | 16 | CNA4.0x50 | 4 | STD12 | 96 | 23.2 | 24.4 | 26 | 27.9 | 30 | 32 |
| BTALU200 | 20 | CNA4.0x50 | 5 | STD12 | 96 | 32.4 | 34.1 | 36.2 | 38.7 | 41.2 | 43.4 |
| BTALU240 | 24 | CNA4.0x50 | 6 | STD12 | 96 | 42.1 | 44.3 | 46.8 | 49.7 | 52.3 | 53.2 |
Palkin leveyden täytyy olla vähintään sama kuin teräsvaarnan pituuden.
Palkeissa, joiden kulma on β, kantokyvyt on kerrottava kertoimella.
| β | 0° | 15° | 30° | 45° |
| kerroin | 1.0 | 0.95 | 0.9 | 0.85 |
Tarvitaan vain liitoksissa, joissa palkissa on alle 7 teräsvaarnaa.
R4,k kantokyvyt koskevat kaiken pituisia teräsvaarnoja.
Tämän taulukon kantokyvyt koskevat myös osittaista naulausta palkkiin.
Kestävyyden ominaisarvot - Palkki-pilariin - R3.k ja R4.k
| Tuotenro | Kestävyyden ominaisarvot - Palkki-pilariin - Osittainen kiinnitys | |||||||||||
|---|---|---|---|---|---|---|---|---|---|---|---|---|
| Liitoskiinnikkeet | Pilariin leveys | Kestävyyden ominaisarvot [kN] | ||||||||||
| Primääripalkki | SB | Minimi | R3,k | R4,k | ||||||||
| Määrä | Tyyppi | Määrä | Tyyppi | Puutavaran leveys = teräsvaarnan pituus [mm] | ||||||||
| 60 | 80 | 100 | 120 | 140 | 160 | |||||||
| BTALU90 | 8 | CNA4.0x50 | 4 | STD8 | 96 | 1.5 | 1.9 | 2.3 | 2.7 | 2.7 | 2.7 | 3.9 |
| BTALU120 | 12 | CNA4.0x50 | 3 | STD12 | 96 | 2.2 | 2.9 | 3.5 | 4.2 | 4.8 | 5.6 | 5.9 |
| BTALU160 | 16 | CNA4.0x50 | 4 | STD12 | 96 | 2.9 | 3.6 | 4.4 | 5.3 | 6.2 | 7 | 7.8 |
| BTALU200 | 20 | CNA4.0x50 | 5 | STD12 | 96 | 3.5 | 4.4 | 5.4 | 6.4 | 7.4 | 8.4 | 9.8 |
| BTALU240 | 24 | CNA4.0x50 | 6 | STD12 | 96 | 4.2 | 5.3 | 6.4 | 7.4 | 8.6 | 9.8 | 11.8 |
Palkin leveyden täytyy olla vähintään sama kuin teräsvaarnan pituuden.
R4,k kantokyvyt koskevat kaiken pituisia teräsvaarnoja.
Asennus
Asennus
Kiinnittäminen
- Asennettaessa piilokenkä primääripalkkiin tai pilariin käytetään CNA4,0xl-naulauslevynauloja tai CSA5,0xl-ruuveja
- Sekundääripalkin päätyyn tehdään 7-8 mm leveä lovi. Teräsvaarnoja varten esiporataan Ø8 tai Ø12 mm:n reiät (käytä mahdollista porausmallinetta). Etäisyyden ylimmästä vaarnan reiästä palkin ylälaitaan tulee olla vähintään 50 mm (BT4-90 tai BTN90: vähintään 35 mm).
- Alumiinista valmistettuihin BTALU-palkkikannattimiin porataan vaarnareiät asennusvaiheessa
- Vaarnareiät porataan ensin sekundääripalkkiin. Niitä käytetään mallina porattaessa alumiiniin